Trilocale in vendita

Narni, Str. di Fiaiola - Ponte San Lorenzo
€ 75.000
3 locali 3 locali
90 Mq 90 Mq
1 bagno 1 bagno

Trilocale in vendita

Narni, Str. di Fiaiola - Ponte San Lorenzo

Descrizione annuncio

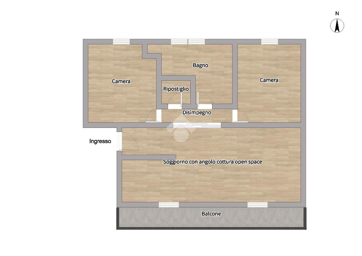
Situato nella zona di Ponte San Lorenzo, questo appartamento offre una posizione strategica, comoda per raggiungere Terni e Narni.

L'appartamento è composto da un ampio soggiorno open space con camino, ideale per trascorrere le serate invernali in compagnia. Il soggiorno è luminoso e arredabile secondo le tue esigenze.

Le due ampie camere da letto offrono spazi comodi per tutta la famiglia.

Il bagno è ampio e confortevolmente arredato, con una doppia finestra e un comodo box doccia.

L'appartamento dispone anche di un giardino di proprietà e un posto auto privato

Ideale per chi cerca una posizione strategica e vuole vivere in una zona tranquilla e rilassante

Mostra tutto

Nelle vicinanze

Trasporto pubblico Trasporto pubblico
Voc. Settecani
Voc. Settecani
1,5 Km
Scuole Scuole
Scuole
540 m
Supermercati Supermercati
Supermercati
2,9 Km
Bar Bar
Bar
2,8 Km
Ristoranti Ristoranti
Il Parco dei Cavalieri
1,6 Km
Mostra tutto

Caratteristiche

Rif.:
61131759
Piano:
1 di 2 (Piano rialzato)
Posti auto:
2
Balconi:
1
Camere da letto:
2
Arredamento:
Parziale
Mostra tutto
Prezzo Prezzo
€ 75.000
Rata mutuo Rata mutuo
€ 345 / mese
Spese annue Spese annue
€ 0
Proponi il tuo prezzoProponi il tuo prezzo

Classe Energetica

G
G
G
G
G
G
G
G
G
Anno di costruzione:
1977
Riscaldamento:
Autonomo
Tipo impianto:
Ad aria
Tipo alimentazione:
Aria

Ti interessa visionare l'immobile?

Fissa un appuntamento  Fissa un appuntamento

Richiedi informazioni

* Questi campi sono obbligatori

Calcola il tuo mutuo

Semplice e senza impegno
Anticipo

( % )
Mutuo

( % )

pochi semplici passi

inserisci i tuoi dati
Questionario completato
Grazie per aver richiesto un appuntamento senza impegno con un nostro Consulente del Credito e Assicurativo.

Hai inserito correttamente tutti i dati necessari e a breve riceverai una e-mail con un link da convalidare per inviare i tuoi dati.
Affiliato
Studio Narni Srl
Via Capitonese, 3 05035 Narni (TR)

Il nostro staff


  • Roberta Gallinella
    Affiliata

  • Maurizio Castellani
    Affiliato

  • Jessica Foscoli
    Coordinatrice

  • Ylenia Marchetti
    Collaboratrice

  • Andrea Nannini
    Collaboratore

  • Daniele Arcara
    Collaboratore
Via Capitonese, 3 05035 Narni (TR)
Zona: Narni
Mostra su mappa
Orari: Dal LUNEDI' al VENEDRI': mattina 08.30-13.00; pomeriggio 15.30-19.30. SABATO: 08.30-13.00. DOMENICA CHIUSI.
Affiliato
Studio Narni Srl
Via Capitonese, 3 05035 Narni (TR)

2025 Tecnocasa Franchising S.p.A. - P. IVA 08365160152 - Via Monte Bianco 60/A 20089 Rozzano (MI). Ogni agenzia ha un proprio titolare ed è autonoma. Privacy policy | Policy utilizzo | Cookie policy